Project type
Single-family residence
Location
Riverside, IL
Size
11,000 sf
Delivery model
Design-build
Sustainability
Adaptive reuse of a 1950's convent













Single-family residence
Existing conditions






Single-family residence
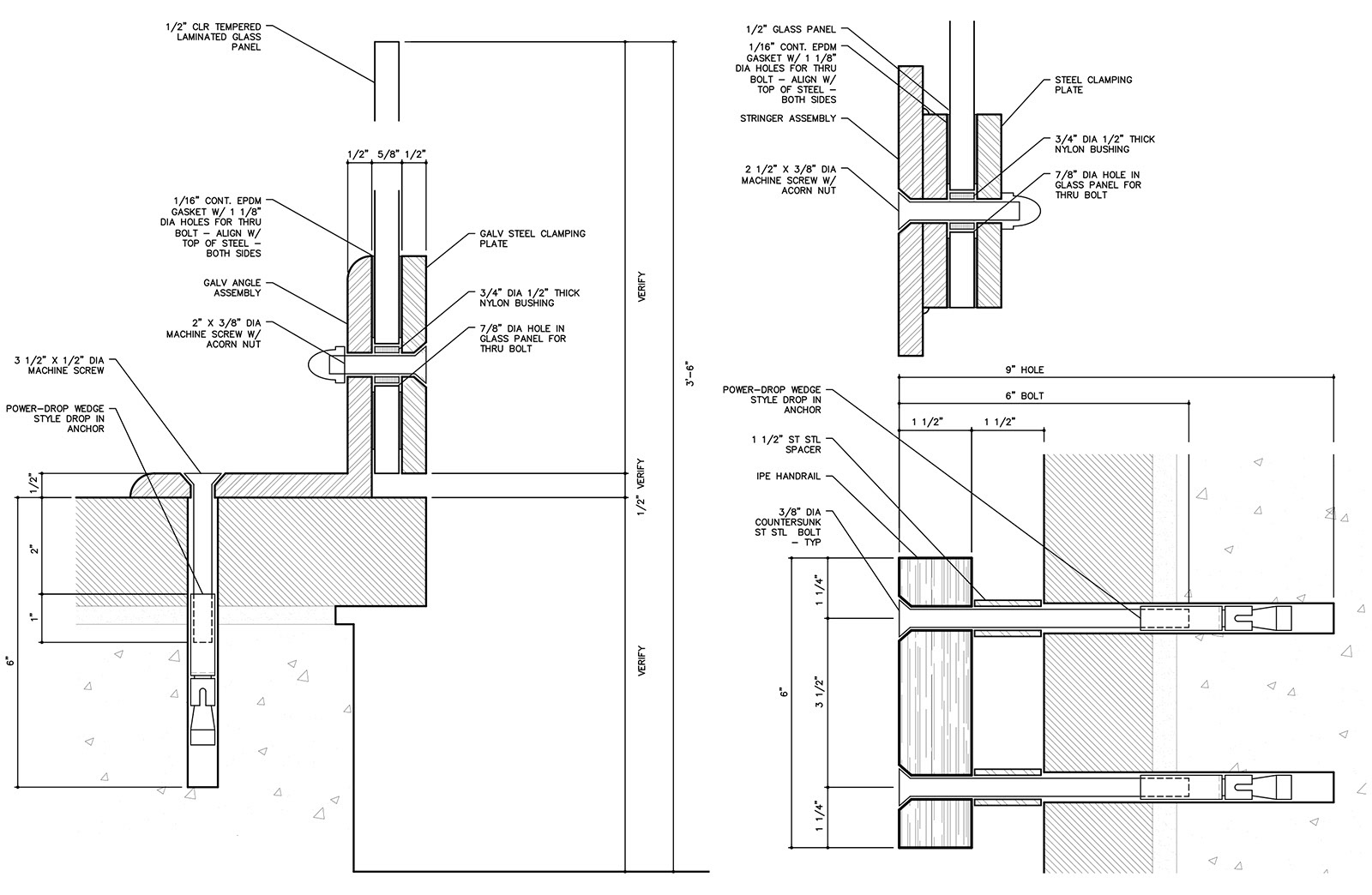
Balcony railing






Single-family residence
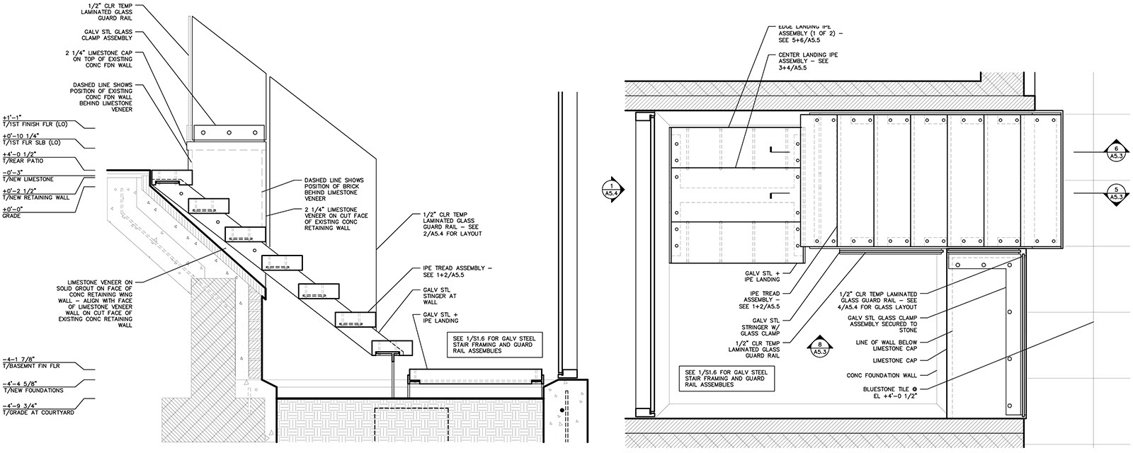
Exterior stair









Single-family residence
Bridge element













