Project type
Commercial property
Location
Chicago, IL
Size
7,500 sf
Delivery model
Design-build
Sustainability
Partial in-situ reuse of structural components













Commercial property
Existing conditions






Commercial property
Reuse diagram

Commercial property
Project overview

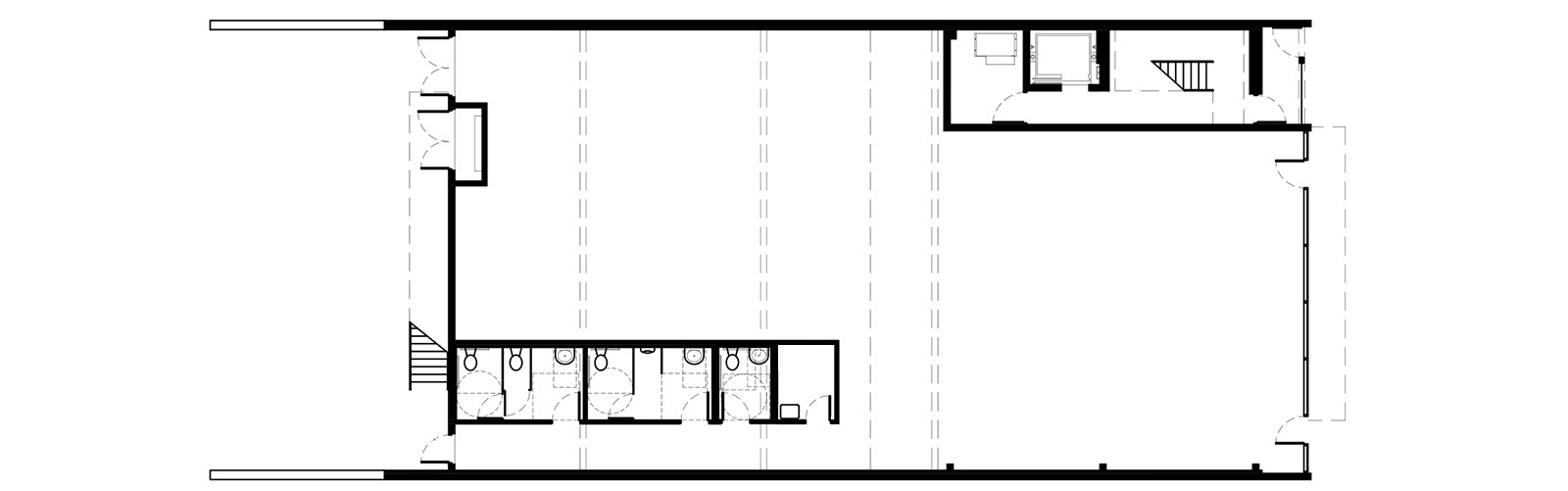
first floor plan

second floor plan

elevations

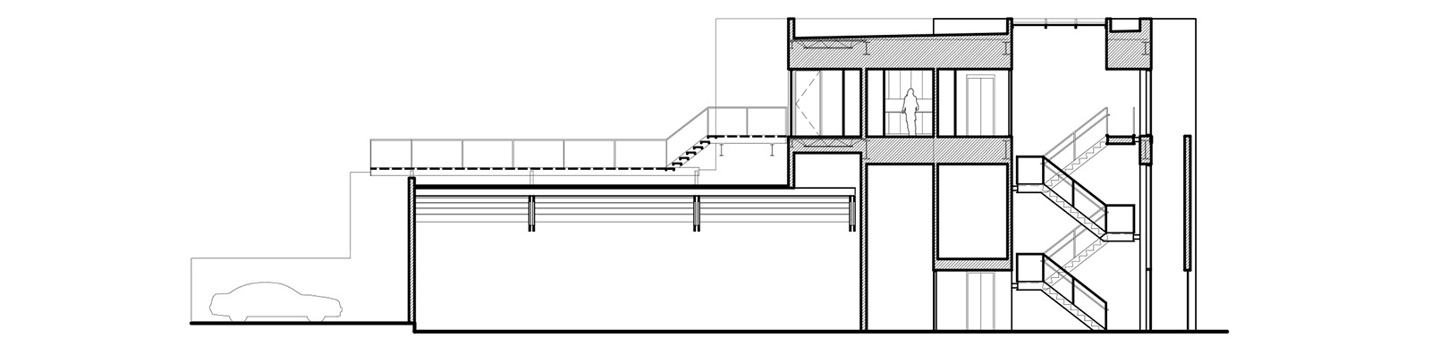
longitudinal section

longitudinal section